-
Sections
-
Keywords
Atelier d’More suspends a study space in the sky over Nanjing
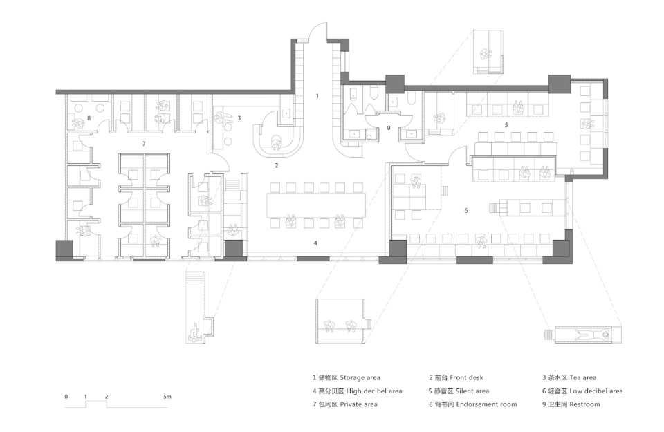
Atelier d'More, Yixin Space, Nanjing, China 2024
Construction phase
Photo SongImage-Langxing Zhou
Atelier d'More, Yixin Space, Nanjing, China 2024
Construction phase
Photo SongImage-Langxing Zhou
Atelier d'More, Yixin Space, Nanjing, China 2024
Scheme of the wooden structure – main hall
Courtesy Atelier d'More
