View gallery
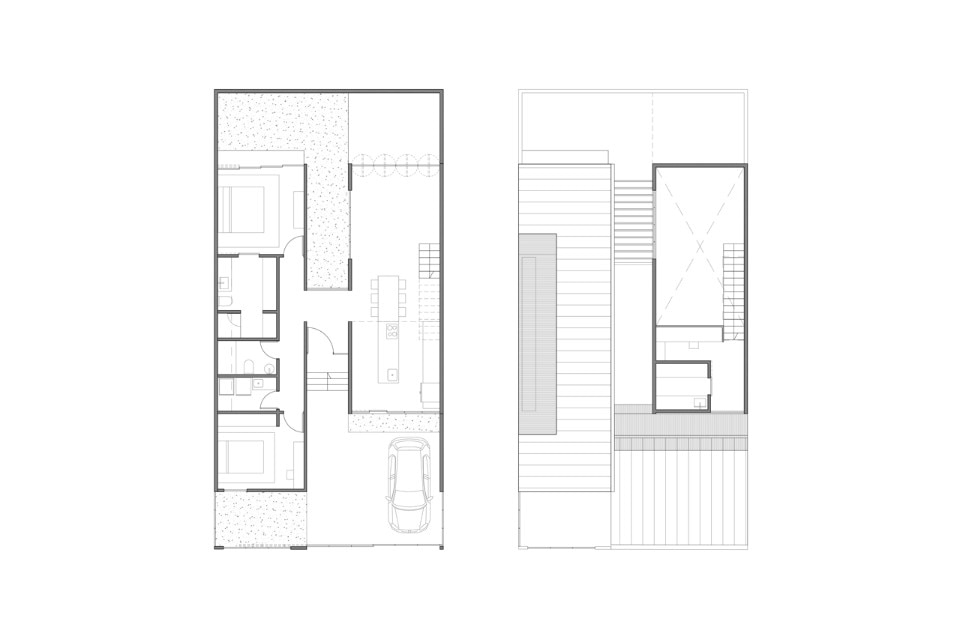
The concrete volume contains an open floor plan with varying heights, distributing the common area (kitchen, dining room, living room), and in the mezzanine the studio and a dark room of photography. To generate privacy between rooms, these were placed at the ends of the zinc volume separated by the wet block (bathrooms, and laundry).
It uses the route of the sun to create shadows and change the spaces according to the hours of the day and the use of spaces. Light becomes one of the main elements, behaving like a texture that generates changing atmospheres.
A range of colors (white, black and gray) was chosen to delimit and frame the spaces. The textures of concrete and zinc reinforce the pure lines of the house. Basic materials such as concrete and zinc were sought to accentuate the simplicity of the project. The stones used in the gardens, are the only mineral elements chosen also with a gray tone to maintain the sobriety of the whole. The gardens function as patios, contemplative spaces of the house producing a sense of silence and tranquility that bounces back inside.
View gallery
Casa Ching, Tres Rios, Costa Rica
Program: single family house
Architect: MG design studio (Arthur Micheron & Leonardo Gonzalez)
Area: 143 sqm
Year: 2017
