The volume of the preexisting building has been maintained except for an addition to the western side of the roof.
The project seeks to reconcile two oppositions in a dense urban environment: privacy on the one side, “eyes on the street” on the other side. A big corner window is in fact the “eye” of the house and two aluminum sliding shutters function as the eyelids.
View gallery
Alessandro Armando – Manfredo di Robilant Architects, Urban House with Big Window, Cambridge Massachusetts
Alessandro Armando – Manfredo di Robilant Architects, Urban House with Big Window, Cambridge Massachusetts
Alessandro Armando – Manfredo di Robilant Architects, Urban House with Big Window, Cambridge Massachusetts
Alessandro Armando – Manfredo di Robilant Architects, Urban House with Big Window, Cambridge Massachusetts
Alessandro Armando – Manfredo di Robilant Architects, Urban House with Big Window, Cambridge Massachusetts
Alessandro Armando – Manfredo di Robilant Architects, Urban House with Big Window, Cambridge Massachusetts
Alessandro Armando – Manfredo di Robilant Architects, Urban House with Big Window, Cambridge Massachusetts
Alessandro Armando – Manfredo di Robilant Architects, Urban House with Big Window, Cambridge Massachusetts
Alessandro Armando – Manfredo di Robilant Architects, Urban House with Big Window, Cambridge Massachusetts. Gorund and first floor plans
C:\Documents and Settings\ssrouji\My Documents\Arch\DiRobilant\A-FORMAT\A-1 A-3 (11x17) (1)
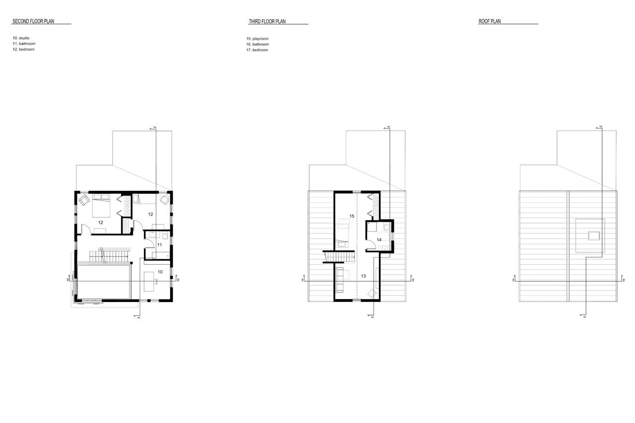
Alessandro Armando – Manfredo di Robilant Architects, Urban House with Big Window, Cambridge Massachusetts. Second floor, third floor and roof plans
Layout2
Alessandro Armando – Manfredo di Robilant Architects, Urban House with Big Window, Cambridge Massachusetts. Longitudinal section
Layout2
Alessandro Armando – Manfredo di Robilant Architects, Urban House with Big Window, Cambridge Massachusetts. Cross section
C:\Documents and Settings\ssrouji\My Documents\Arch\DiRobilant\A-FORMAT\A-1 A-3 (11x17) (1)
Alessandro Armando - Manfredo di Robilant Architetti, Casa urbana con grande finestra, Cambridge Massachusetts. East elevation
Urban House with Big Window, Cambridge Massachusetts
Program: single-family house
Architects: Alessandro Armando – Manfredo di Robilant Architects
Record architect and associate for interiors: Samir Srouji
Structures: Sami Kasssis
Assistance to landscaping: Adrian Fehrmann
Completion: 2013
