View gallery
Img.1 Design Experiment, Prajay Chits Funds Office, India, 2017. Photo Abhitej Velore and Anees Tasneem
Img.2 Design Experiment, Prajay Chits Funds Office, India, 2017. Photo Abhitej Velore and Anees Tasneem
Img.3 Design Experiment, Prajay Chits Funds Office, India, 2017. Photo Abhitej Velore and Anees Tasneem
Img.4 Design Experiment, Prajay Chits Funds Office, India, 2017. Photo Abhitej Velore and Anees Tasneem
Img.5 Design Experiment, Prajay Chits Funds Office, India, 2017. Photo Abhitej Velore and Anees Tasneem
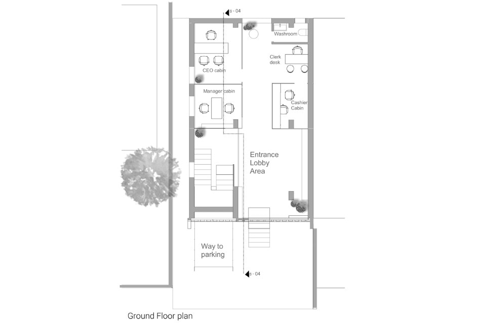
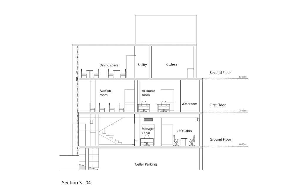
The entire office needed to be designed and built in 45 days, so the designers chose to go with a design language that would try to stand out without disrespecting its surroundings: a brick facade would be detailed specifically to be rapidly constructed. The second task was creating an identity not only through its space but through its brand identity. The interiors of the building combine environmental graphics of simple minimal quality with clean aesthetic to emphasize the company’s values.
Prajay Chits Funds Office, Ramkoti, Telangana, India
Program: office
Architects: Design Experiment
Team: Abhitej Velore, Sarojini Dantapalli, Maniteja Gandhe
Area: 260 sqm
Completion: 2017
