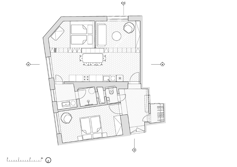
A bookshelf connects and separates the living areas. This solution, sometimes used in the shared apartments of the students, is not always inelegant, they prove Ddaann studio who have renovated a 1930 apartment using the library as a strategic point in the organization of space. The renovated apartment is located in the student district of Prague Žižkov, (where Franz Kafka is buried), a lively, young and full of student district. The renovation meets the needs of a young married couple. A connected space full of light. In the hallway there are doors leading to a dressing room, a toilet and a separate bedroom – or alternatively a study; but above all, at a core of the new arrangement – there is an open kitchen with a dining table. The bookcase separates and connects the main living area and an adjacent relaxation area with a small bedroom. The bathroom consists of two separate rooms. The first is generously lit by a large window, the other serves as a spacious shower. The conceptual vision is further reflected on the joints and surfaces: the built-in furniture is made of bleached birch plywood tables with a thin edge; the materials include pastel blue and green tiles, light gray fusion floors or bright orange upholstery. This setting is completed by distinctive solitary furniture, decorations and plants. The apartment is spacious, airy and simple.
View gallery
- Project:
- Appartamento a Žižkov
- Architecture:
- DDAANN studio
- Photography:
- Daniel Baudis
- Completion:
- 2018
