The 70% of school buildings were built before 1975 in Italy. The ageing of the structures and the inadequacy in terms of seismic safety and energy performance represent an emergency to be managed but also a great opportunity for the renewal of teaching spaces.
Rethinking school complexes as new civic centres equipped with libraries, auditoriums and aggregation spaces is the new challenge and redevelopment can become a capillary engine of real urban regeneration.
This experiment has taken shape in the project “Torino fa scuola”, a public and private initiative together, promoted by Fondazione Agnelli and Compagnia di San Paolo, in collaboration with the City of Turin and Fondazione per la Scuola.
The project of Archisbang Architecture Firm and Area Progetti for the secondary school Giovanni Pascoli is a model for the redevelopment of a school in a period building.
“The challenge was to bring innovative didactics within the walls of a protected historical building, permeated by structural and cultural constraints,” says Silvia Minutolo of Archisbang, “breaking down the barriers of the classroom towards the large courtly distribution spaces that become inhabited spaces, welcoming the city inside the school, calling it to enter and contaminate it.”
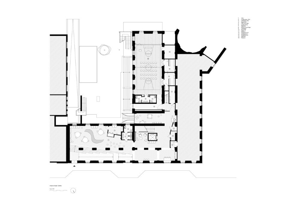
The more complex interventions, such as the creation of a roof terrace, the moving of the main entrance with the creation of an internal atrium and the mezzanine of the library are extremely innovative and guided by respect for historical architecture and pursue its renovation, enhancing the potential hidden by interventions carried out in economy over the years.
The main staircase, previously penalized by the fire-fighting compartmentalization, returns to be the fulcrum of the building's distribution system thanks to the construction of a new system of external safety stairs. Newly built white painted metal walkways connect the main staircase to the mezzanine levels.
In the gymnasium a rich coffered ceiling concealed for years by false ceilings was freed and is now visible from the new library mezzanine.
View gallery
Archisbang associates and Area progetti s.r.l., redevelopment of the Giovanni Pascoli school, Turin, 2019.
Photo Ernani Orcorte
Archisbang associates and Area progetti s.r.l., redevelopment of the Giovanni Pascoli school, Turin, 2019.
Photo Ernani Orcorte
Archisbang associates and Area progetti s.r.l., redevelopment of the Giovanni Pascoli school, Turin, 2019.
Photo Ernani Orcorte
Archisbang associates and Area progetti s.r.l., redevelopment of the Giovanni Pascoli school, Turin, 2019.
Photo Ernani Orcorte
Archisbang associates and Area progetti s.r.l., redevelopment of the Giovanni Pascoli school, Turin, 2019.
Photo Ernani Orcorte
Archisbang associates and Area progetti s.r.l., redevelopment of the Giovanni Pascoli school, Turin, 2019.
Photo Ernani Orcorte
Archisbang associates and Area progetti s.r.l., redevelopment of the Giovanni Pascoli school, Turin, 2019.
Photo Ernani Orcorte
Archisbang associates and Area progetti s.r.l., redevelopment of the Giovanni Pascoli school, Turin, 2019.
Photo Ernani Orcorte
Archisbang associates and Area progetti s.r.l., redevelopment of the Giovanni Pascoli school, Turin, 2019.
Photo Ernani Orcorte
Archisbang associates and Area progetti s.r.l., redevelopment of the Giovanni Pascoli school, Turin, 2019.
Photo Marco Giai Via
Archisbang associates and Area progetti s.r.l., redevelopment of the Giovanni Pascoli school, Turin, 2019.
Photo Marco Giai Via
Archisbang associates and Area progetti s.r.l., redevelopment of the Giovanni Pascoli school, Turin, 2019.
Photo Marco Giai Via
Archisbang associates and Area progetti s.r.l., redevelopment of the Giovanni Pascoli school, Turin, 2019.
Photo Marco Giai Via
Archisbang associates and Area progetti s.r.l., redevelopment of the Giovanni Pascoli school, Turin, 2019.
Photo Marco Giai Via
Archisbang associates and Area progetti s.r.l., redevelopment of the Giovanni Pascoli school, Turin, 2019.
Photo Ernani Orcorte
Archisbang associates and Area progetti s.r.l., redevelopment of the Giovanni Pascoli school, Turin, 2019.
Photo Ernani Orcorte
Archisbang associates and Area progetti s.r.l., redevelopment of the Giovanni Pascoli school, Turin, 2019.
Photo Ernani Orcorte
Archisbang associates and Area progetti s.r.l., redevelopment of the Giovanni Pascoli school, Turin, 2019.
Photo Ernani Orcorte
Archisbang associates and Area progetti s.r.l., redevelopment of the Giovanni Pascoli school, Turin, 2019.
Photo Ernani Orcorte
Archisbang associates and Area progetti s.r.l., redevelopment of the Giovanni Pascoli school, Turin, 2019.
Photo Ernani Orcorte
Archisbang associates and Area progetti s.r.l., redevelopment of the Giovanni Pascoli school, Turin, 2019.
Photo Ernani Orcorte
Archisbang associates and Area progetti s.r.l., redevelopment of the Giovanni Pascoli school, Turin, 2019.
Photo Ernani Orcorte
Archisbang associates and Area progetti s.r.l., redevelopment of the Giovanni Pascoli school, Turin, 2019.
Photo Ernani Orcorte
Archisbang associates and Area progetti s.r.l., redevelopment of the Giovanni Pascoli school, Turin, 2019.
Photo Marco Giai Via
Archisbang associates and Area progetti s.r.l., redevelopment of the Giovanni Pascoli school, Turin, 2019.
Photo Marco Giai Via
Archisbang associates and Area progetti s.r.l., redevelopment of the Giovanni Pascoli school, Turin, 2019.
Photo Marco Giai Via
Archisbang associates and Area progetti s.r.l., redevelopment of the Giovanni Pascoli school, Turin, 2019.
Photo Marco Giai Via
Archisbang associates and Area progetti s.r.l., redevelopment of the Giovanni Pascoli school, Turin, 2019.
Photo Marco Giai Via
The buffered arches were freed in all internal corridors in order to enhance the historical load-bearing structure in favour of fixed containing furniture and glazed portions on the lunettes, while on the ground the characteristic chequerboard cementing that gives continuity to the distribution spaces was restored.
In the classrooms new slab ceilings, slightly detached from the side walls, let the design of the vaults to be perceived, while the compromised floors are replaced by new wooden ones, resuming the historical use of the material.
Mobile walls and furniture and the careful use of colour transform the corridors into common areas and widespread libraries that contribute to building a new idea of a school.
- Project:
- Giovanni Pascoli School
- Program:
- Retraining First grade secondary school, gymnasium, auditorium, library, classrooms and common areas (as part of the project to promote innovative didactics Torino Fa Scuola)
- Architects:
- Archisbang associati and Area progetti s.r.l.
- Customer:
- Foundation for the School of the Compagnia di San Paolo
- Location:
- Turin, Italy
- Area:
- 2.900 sqm
- Work amount:
- € 2,750,000 works + € 350,000 settings
- Completion:
- 2019
