View gallery
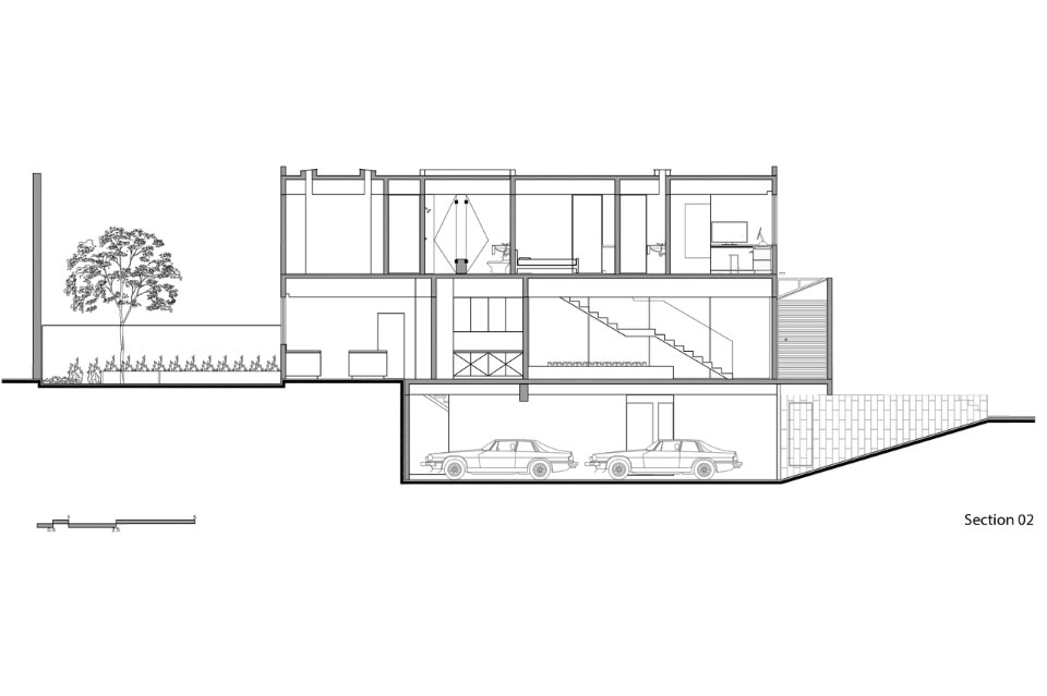
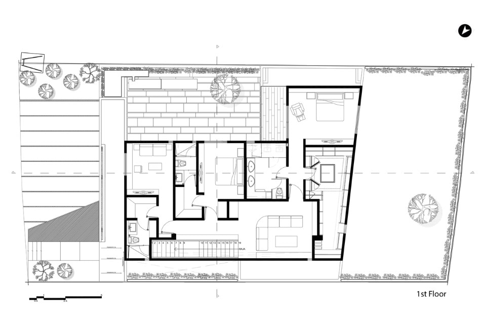
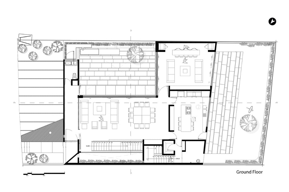
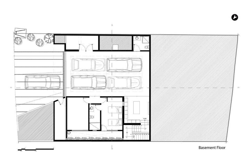
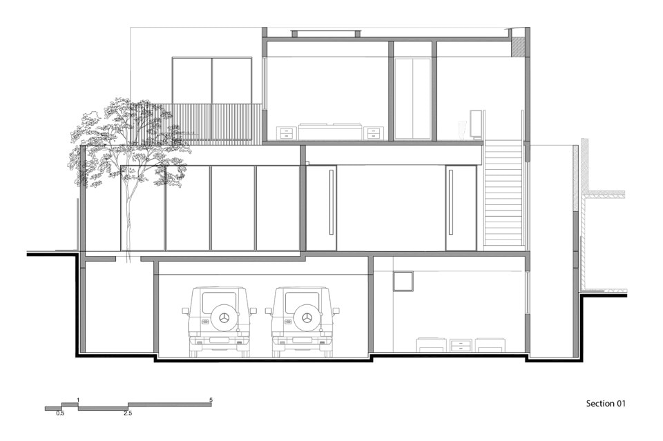
The shape of the footprint and the regulated limits led Portillo to a solution involving soil excavation and removal. Mexican architect used it to produce compressed earth blocks, providing a real solution that reduce the environmental footprint, and create a rooted sense of belonging in which the color scheme is defined by the site itself, and not by the architect.
Cumbres House, Mexico City
Program: single family house
Architect: ASP Arquitectura Sergio Portillo – Sergio Portillo Alarcón
Collaborators: Rafael Ovalle, Francisco Machuca
Landscape: David Villanueva
Installation: Grupo R
Contractor: Lineal Construcción y Desarrollo Arquitectónico
Area: 517 sqm
Completion: 2016
