Gli spazi interni seguivano la struttura e la logica razionale tipica degli anni Cinquanta, con ambienti di dimensioni diversi distribuiti lungo un corridoio centrale. Questa distribuzuone classica rappresentava già una buona risposta alle necessità del nuovo programma funzionale, con la sola necessità di aggiungere una maggiore connessione tra i diversi spazi.
Il progetto cerca di mantenere e ripristinare l’appartamento essitente mentre, allo stesso tempo, ne stravolge lo spirito aggiungendo forme non fisiche, spazi, tagli e pulizia.
Galleria
ch+qs Churtichaga+Quadra-Salcedo arquitectos, HUB flat, Madrid. Photo © Daniel Torrelló
ch+qs Churtichaga+Quadra-Salcedo arquitectos, HUB flat, Madrid. Photo © Daniel Torrelló
ch+qs Churtichaga+Quadra-Salcedo arquitectos, HUB flat, Madrid. Photo © Daniel Torrelló
ch+qs Churtichaga+Quadra-Salcedo arquitectos, HUB flat, Madrid. Photo © Daniel Torrelló
ch+qs Churtichaga+Quadra-Salcedo arquitectos, HUB flat, Madrid. Photo © Daniel Torrelló
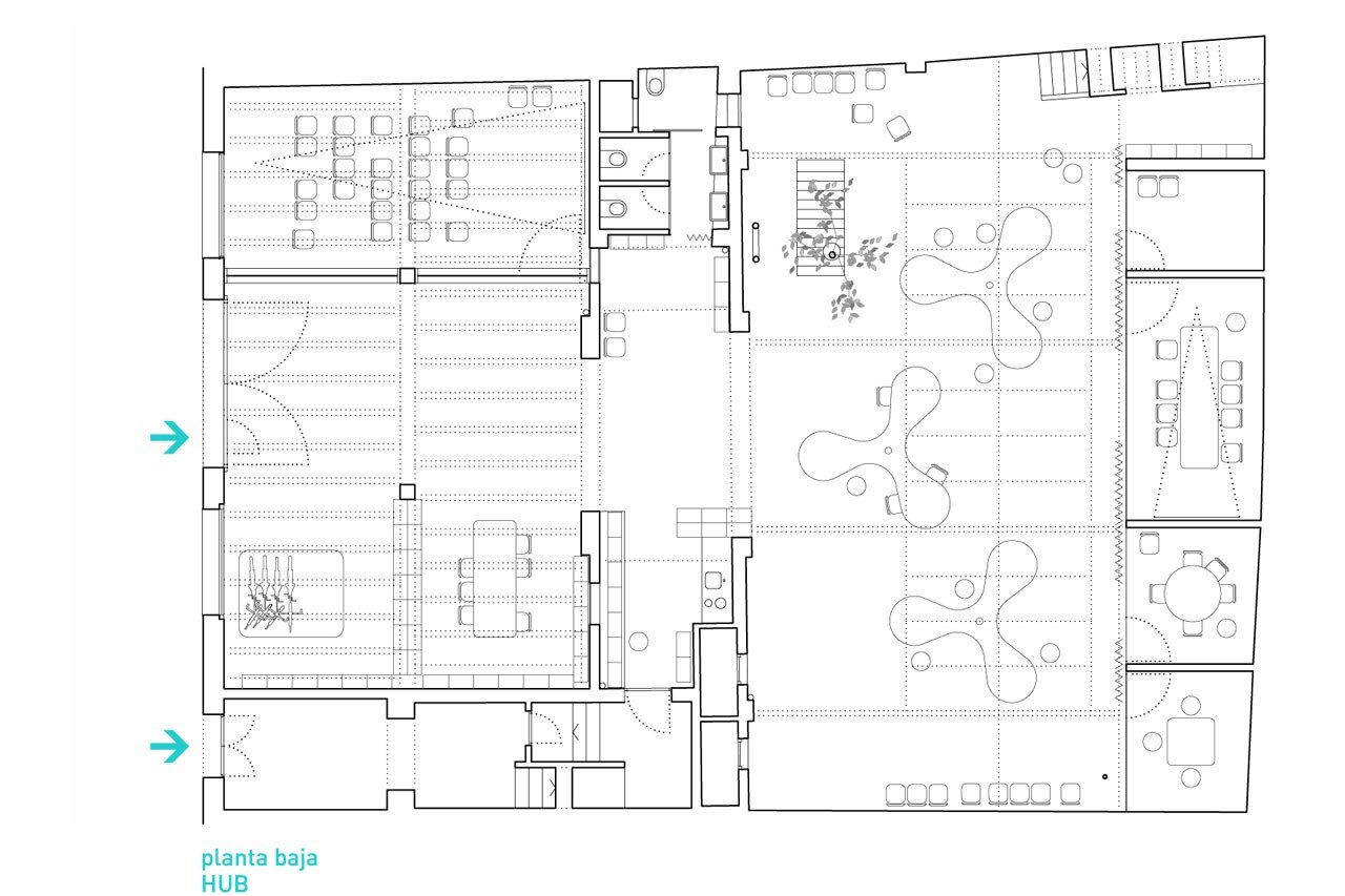
P:\PROYECTOS\2008\0804_HUB_MAD\15_PUBLICACIONES , EXPOS Y PREMIOS\MATERIAL PUBLICACION\0805_130214_gen+flat Presentación1 (1)
ch+qs Churtichaga+Quadra-Salcedo arquitectos, HUB flat, Madrid. Pianta del primo piano
P:\PROYECTOS\2008\0804_HUB_MAD\15_PUBLICACIONES , EXPOS Y PREMIOS\MATERIAL PUBLICACION\0805_130214_gen+flat Presentación1 (1)
ch+qs Churtichaga+Quadra-Salcedo arquitectos, HUB flat, Madrid. Pianta del secondo piano
HUB flat, Madrid
Tipologia: studio e appartamento
Architetti: ch+qs Churtichaga+Quadra-Salcedo arquitectos
Completamento: 2014
