In this project, versatile spaces that incorporate light and scenery were intended by the windows in order to bring out the best in this house.
Scenery viewed through a window is greatly affected by the size or position of the window.
It is therefore essential to consider what should be viewed or not in the scenery framed by the window, instead of being stereotyped to take in the large area of the scenery by providing the largely-opening window.
The windows as framings produce comfortable spaces where you can enjoy light and scenery without being annoyed by eyes of neighborhood.
The spaces incorporate a table, bench, book shelf, niche, and other furniture items so that you can utilize there to view outside, read books, eat meals, etc., which brings out characteristics of each space and provides its versatility.
The space is composed of mortar with a feel of texture, highlighting its presence. At the same time, it provides openness created by the clear and continuous sightline.
In addition, the space also serves as an indispensable element that reflects visual changes of light and scenery developed while moving around the room.
The dynamic configuration involving the box-shape volume with rhythmical layout of the windows produces beautiful life scenes where light and scenery are taken in while the eyes of neighborhood are blocked.
View gallery
<9678897A93402095BD96CA907D208E478E8F>
<9678897A93402095BD96CA907D208E478E8F>
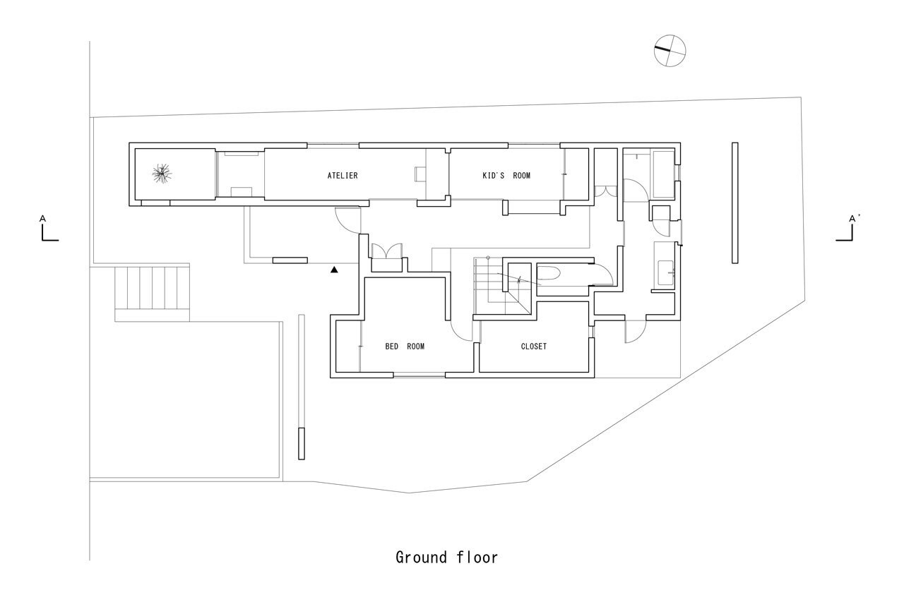
Scape House, Shiba, Japan
Program: single-family house
Architects: FORM/Kouichi Kimura Architects
Area: 137 sqm
Completion: 2014
