These three elements, which together create a sense of imbalance, highlight the strong symbolism of the project. The subtle layering and misalignment of the various shapes, level upon level, is disconcerting for the visitor, as it appears defy the laws of gravity.
The emptiness formed by the three components gives the building its underlying feeling of space. The placement of each element provides the surrounding urban area with a sense of structure, as the interior spaces.
The hall area and the atrium serve as gathering places, where the public and employees can meet and exchange ideas.
The building has no cooling or air conditioning, but has an overnight cooling system. At night, the upper section of the atrium and the offices open up to create a flow of cool air caused by the stack effect. The central atrium is therefore used by the building as a kind of breathing apparatus.
View gallery
Z:\20- Diffusion-Publi-Book\21- Publication old 3-AMC Equerre d'argent\BOR AMC 2013\02-Travail\BOR-AQU PLN MASSE 2 (AMC) R+0
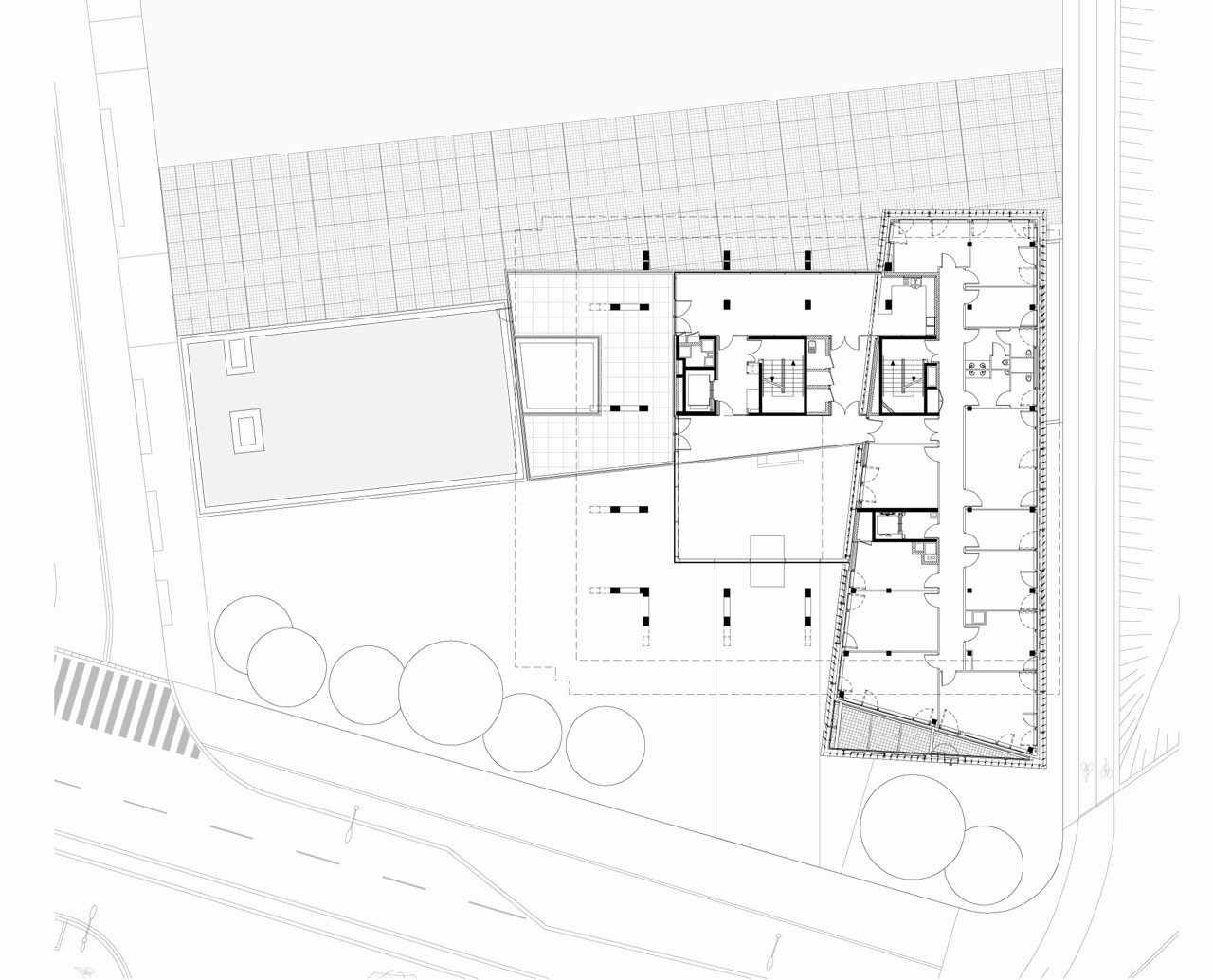
Z:\20- Diffusion-Publi-Book\21- Publication old 3-AMC Equerre d'argent\BOR AMC 2013\02-Travail\BOR-AQU PLN (AMC) R+0 A4 (1)
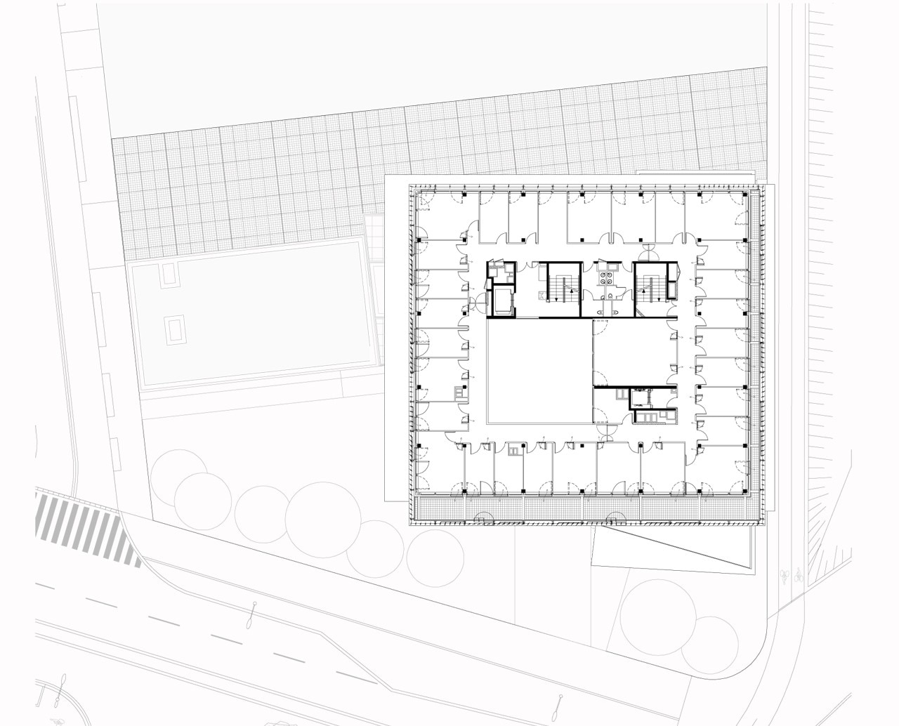
Z:\20- Diffusion-Publi-Book\21- Publication old 3-AMC Equerre d'argent\BOR AMC 2013\02-Travail\BOR-AQU PLN (AMC) R+4 A4 (1)
Z:\20- Diffusion-Publi-Book\21- Publication old 3-AMC Equerre d'argent\BOR AMC 2013\02-Travail\BOR-AQU PLN (AMC) R+1 A4 (1)
Z:\20- Diffusion-Publi-Book\21- Publication old 3-AMC Equerre d'argent\BOR AMC 2013\02-Travail\BOR-AQU CPES (AMC) CPE AA A4
Aquitanis head office, Bordeaux, France
Main architects: Platform Architectures
Associated architects: Reichen & Robert & Associés
Area: 4,918 sqm
Completion: 2013
