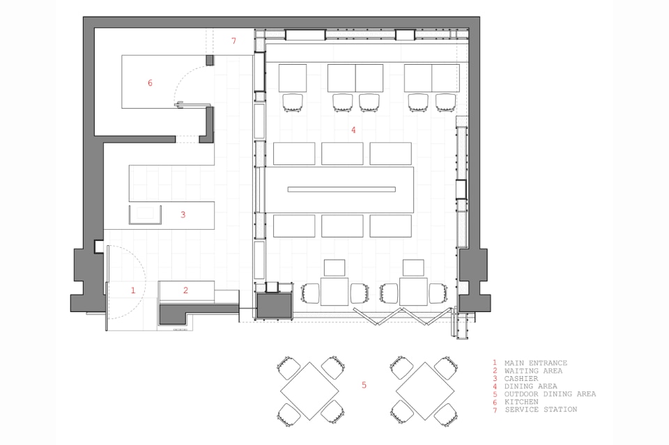
Walking past the entry box, a customer is greeted by a composed counter design lined with the bamboo mold used for casting the exteriors. As one proceeds towards the hall surrounding the grid structure, the interior layers start revealing themselves. Firstly, the original wall is stripped down to its structural blocks to resonate with the rustic metal grid. Secondly, wooden boxes are carefully placed within the rack to showcase selected porcelains. Finally, a series of metal wires are draped across the dining room to create the lighting feature with hanging bulbs. Balancing the rustic interiors, these reflective strands create a poetic notion of dining under a noodle rack.
Playing with the duality between rustic and refined, eastern tradition and western representation, Lukstudio introduces a crossover between fast food chain and upscale diner.
View gallery
Z:\lukstudio\1-Projects\1-Current\2015\2- 隆小宝\0-Project Management\04-post-construction\05-Diagrams\04_Process\CAD\LXB secti
The Noodle Rack, Changsha, China
Program: restaurant
Architects: Lukstudio
Project team: Christina Luk, Alba Beroiz Blazquez, Cai Jin Hong, Pao Yee Lim
General contractor: Shanghai MaiChang Construction Project Co., Ltd.
Area: 50 sqm
Completion: 2015
