The historic part of the building, dating from 1914, has been renovated to become a museum café and event hall. The new museum structure is characterised by strategic sightlines that make the most of the park-like setting, blending inside and outside in a seamless whole. Besides exhibiting parts of the permanent collection, the building also offers space for exhibitions, administrative offices and a restoration workshop.
The museum has an inviting appearance, clear layout and a surprisingly light, airy quality of space. In it, Van Heeswijk repeats his distinctive use of natural materials like stone, glass and steel.
View gallery
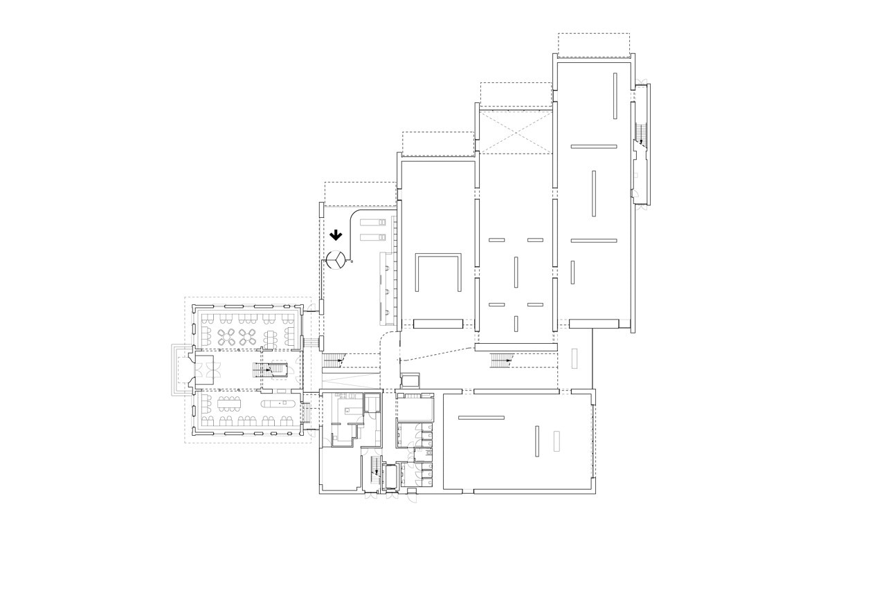
MmR_PR-100_plattegronden.mcd
Hans van Heeswijk Architects, Museum MORE, Gorssel, Netherlands. Ground floor plan
MmR_PR-100_plattegronden.mcd
Hans van Heeswijk Architects, Museum MORE, Gorssel, Netherlands. First floor plan
MmR_PR-100_plattegronden.mcd
Hans van Heeswijk Architects, Museum MORE, Gorssel, Netherlands. Attic plan
Museum MORE, Gorssel, Netherlands
Program: museum
Architects: Hans van Heeswijk architecten
Landscape design: Michael van Gessel
Structural consultant: Van Rossum Raadgevende Ingenieurs
M&E consultant: Nelissen ingenieursbureau
Supervision construction: Herder advies
General contractor: Koopmans
E-installations: Croon
W-installations: Wolter & Dros
Area: 4,100 sqm
Completion: 2015
