Because the project is part of a claimed environmental approach but also because the small size of the plot and its difficult access urged him, the architects of JTB. architecture proposed a structural scheme adapted to these criteria.
The building thus consists of a base in reinforced concrete and masonry, on which the five floors and roof panels made entirely of wooden cross-laminated KLH.
In France, the construction of high multi-family wooden structures is still counted on the fingers of one hand.
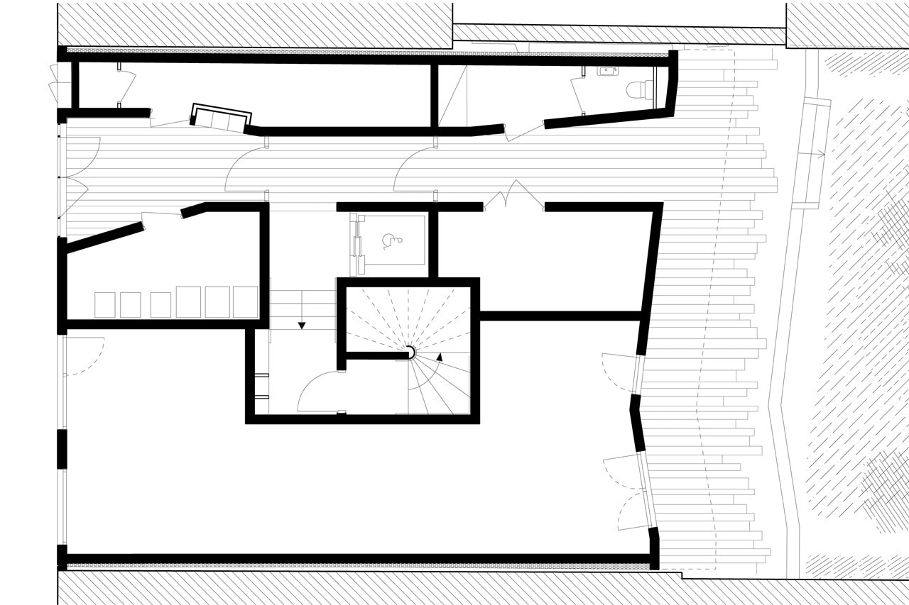
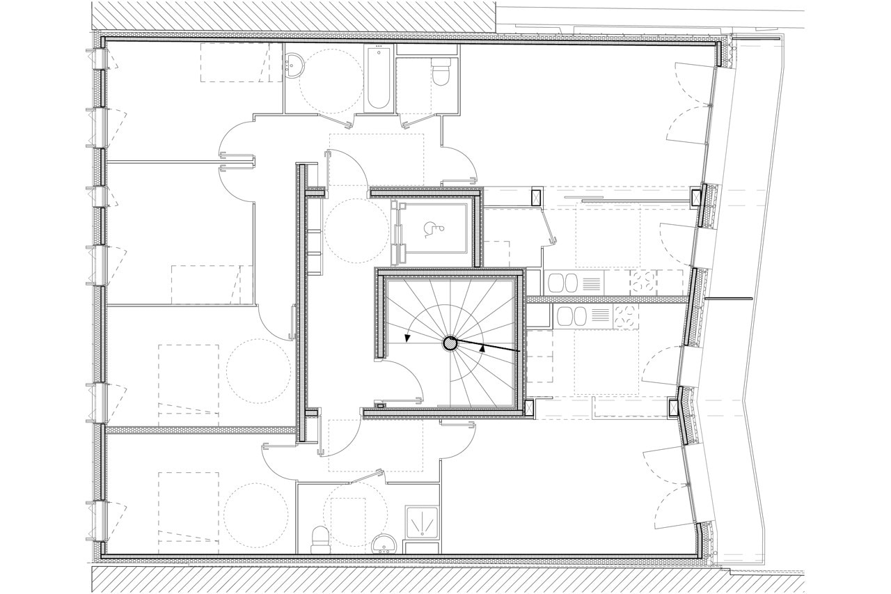
The composition of the staircases and wooden elevators are unprecedented for this type of program. Despite its small size, the project offers a variety of housing typology, from T1 to T5, all through and offering a private outdoor space for everyone. The building envelope is completely isolated from the outside and coated with a white lacquered metal skin.
View gallery
LOGEMENTS SOCIAUX À SAINT DENIS, 2014, JTB Architectures
LOGEMENTS SOCIAUX À SAINT DENIS, 2014, JTB Architectures
LOGEMENTS SOCIAUX À SAINT DENIS, 2014, JTB Architectures
LOGEMENTS SOCIAUX À SAINT DENIS, 2014, JTB Architectures
\\EXP\JTB architecture\02-JTB_PCH\02-JTB_00-CONCOURS\PG\2D\CONC_2010.04.28 A3 pays (1)
02-PCH_presse-NIV0 RDC (1)
R+4 100 5
elev rue 100
Ten social rented apartments, Saint-Denis, France
Program: social housing
Architects: JTB. architecture
Project manager: Siham Laadjal
Engineering: Egsc, Arpente
Manufacturers/Suppliers: Klh / Lignatec, Arval Arcelor-Mittal
Area: 926 sqm
Completion: 2015
